Перейти к содержимому
Проекты
Домокомплекты
Модульные дома
Услуги и стоимость
Галерея
+7 (383) 249-52-52
О компании
Полезные статьи
Контакты
Строительство каркасных домов
в Новосибирске
+7 (383) 249-52-52
Проекты
Домокомплекты
Модульные дома
Услуги и стоимость
Галерея
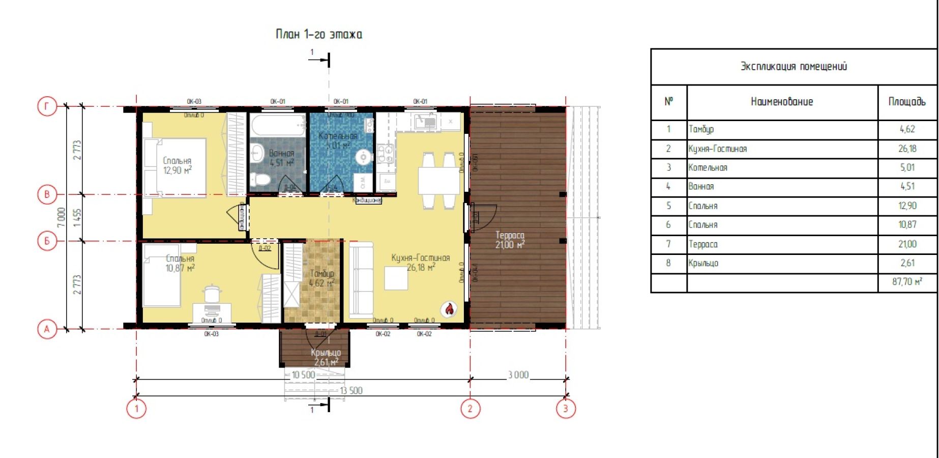
Готовые проекты
Барн 95
Размеры дома
13,5х7 м
Площадь дома
95 кв.м
Количество комнат
5
Количество спален
2
План помещения
Просторные комнаты и терраса
Барн 95
Как это выглядит
Фотогалерея проекта
Понравился проект?
Вы можете узнать точную стоимость и сроки реализации проекта прямо сейчас
Узнать стоимость
Узнать стоимость
Закажите обратный звонок
Позвоните мне
Ваши данные защищены